3271 Scherpenheuvel-ZichemBrabantsebaan 66
Ruime gezinswoning met multifunctionele kelder, zonnepanelen en uitbreidingspotentieel op centrale ligging met zonnige tuin
€ 435 000
Aan de Brabantsebaan 66 in het charmante Scherpenheuvel-Zichem staat een verrassend ruime open bebouwing te koop, ideaal voor wie op zoek is naar een woning met veel ruimte, potentieel én een stevige energetische basis. Met 210 m² bewoonbare oppervlakte, verspreid over drie volwaardige verdiepingen, en een perceel van 12a 66ca, heeft deze woning alle troeven in huis om er jouw warme, duurzame thuis van te maken.
Het gelijkvloers vormt het kloppende hart van de woning, met ...
een lichtrijke leefruimte die dankzij de grote raampartijen baadt in natuurlijk licht en samen met de eetruimte een warm en open geheel vormt. De keuken van 13,8 m² ligt apart, biedt voldoende werkruimte en geeft rechtstreeks toegang tot het recent vernieuwde terras met stijlvol steentapijt – de ideale plek voor lange, zwoele zomeravonden met zicht op de tuin. Vanuit de centrale inkomhal bereik je drie comfortabele slaapkamers (20 m² en twee keer 10,5 m²), een moderne badkamer met inloopdouche, een apart toilet.
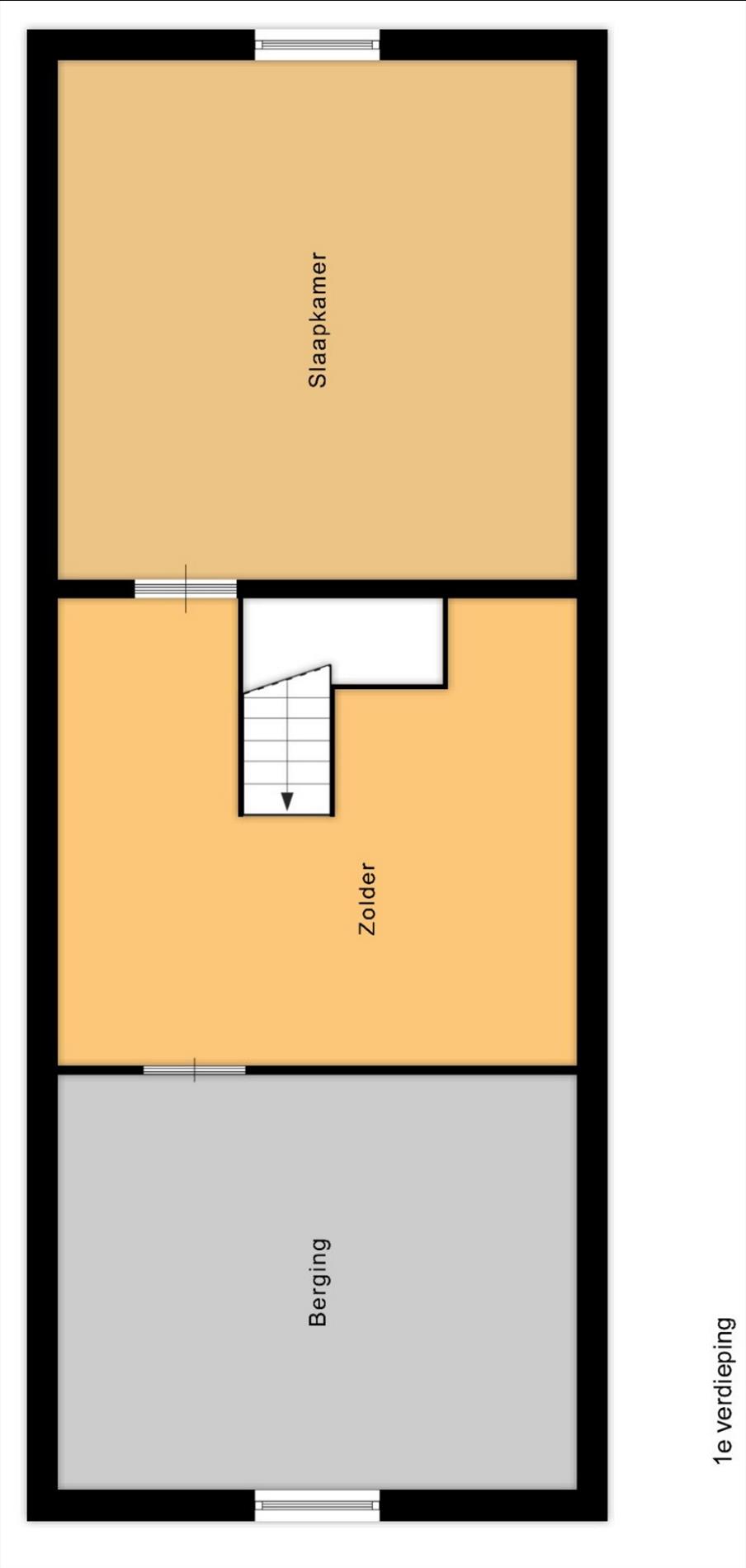
De zolderverdieping bereik je via een vaste trap. Deze verdieping is nog niet afgewerkt, maar biedt met zijn ruime oppervlakte enorm veel uitbreidingsmogelijkheden: denk aan een extra grote master-bedroom van 25 m² met dressing, een bureau, speelkamer of zelfs een tweede badkamer. Dubbel glas is hier al voorzien, wat een toekomstgerichte verbouwing vergemakkelijkt.
Ondergronds beschikt de woning over een volwaardige kelder van maar liefst 79 m² en netjes opgedeeld in verschillende compartimenten. Hier is onder andere plaats voor een wasplaats, voorraadkelder, technische ruimte, of misschien wel een gezellige mancave. Bovendien bevindt zich hier ook een garage van 24,4 m², een extra troef voor wie praktische ruimte belangrijk vindt of droomt van een werkplaats, hobbyruimte of extra opslag.
De woning onderging de afgelopen jaren al verschillende vernieuwingen: zo werd het dak geïsoleerd, de spouwmuren aangepakt, en werd de badkamer volledig vernieuwd. De basis is dan ook meer dan degelijk en vormt een sterk uitgangspunt voor verdere persoonlijke afwerking. Daarnaast is er in de straat een gasaansluiting aanwezig, wat bijkomende flexibiliteit biedt voor wie wil omschakelen.
Een van de grootste pluspunten zijn de 21 zonnepanelen, goed voor een flinke besparing op je energiefactuur. Bovendien geniet je nog zes jaar lang van groene stroomcertificaten – een financieel voordeel dat je vandaag de dag nog zelden vindt.
De tuin is zuidoostelijk georiënteerd en laat je volop genieten van de ochtend- en middagzon. Dankzij de royale perceeloppervlakte zijn uitbreidingen zoals een serre, bijgebouw of zelfs een zwembad perfect mogelijk. Het vernieuwde terras sluit naadloos aan op het gazon, waar kinderen zorgeloos kunnen spelen en je tegelijk geniet van rust en ruimte.
De woning geniet van een vlotte en centrale ligging die zowel gezinnen als pendelaars zal aanspreken. Op wandelafstand vind je alles wat je nodig hebt: een school, openbaar vervoer, gezellige horeca, winkels en medische voorzieningen. Bovendien bereik je de oprit naar de snelwegen in minder dan tien minuten, wat zorgt voor een uitstekende verbinding met de rest van de regio. Een praktische locatie waar comfort en bereikbaarheid hand in hand gaan.
De Brabantsebaan 66 is met zijn ruime oppervlakte, volwaardige kelder, zonnepanelen met certificaten en uitbreidbare zolder een woning boordevol potentieel. Interesse om dit pand met eigen ogen te ontdekken? Neem dan vandaag nog contact op via 011 255 155 voor een persoonlijke rondleiding. – Bron bewoonbaar oppervlakte: EPC-verslag.
Lees meer
De zolderverdieping bereik je via een vaste trap. Deze verdieping is nog niet afgewerkt, maar biedt met zijn ruime oppervlakte enorm veel uitbreidingsmogelijkheden: denk aan een extra grote master-bedroom van 25 m² met dressing, een bureau, speelkamer of zelfs een tweede badkamer. Dubbel glas is hier al voorzien, wat een toekomstgerichte verbouwing vergemakkelijkt.
Ondergronds beschikt de woning over een volwaardige kelder van maar liefst 79 m² en netjes opgedeeld in verschillende compartimenten. Hier is onder andere plaats voor een wasplaats, voorraadkelder, technische ruimte, of misschien wel een gezellige mancave. Bovendien bevindt zich hier ook een garage van 24,4 m², een extra troef voor wie praktische ruimte belangrijk vindt of droomt van een werkplaats, hobbyruimte of extra opslag.
De woning onderging de afgelopen jaren al verschillende vernieuwingen: zo werd het dak geïsoleerd, de spouwmuren aangepakt, en werd de badkamer volledig vernieuwd. De basis is dan ook meer dan degelijk en vormt een sterk uitgangspunt voor verdere persoonlijke afwerking. Daarnaast is er in de straat een gasaansluiting aanwezig, wat bijkomende flexibiliteit biedt voor wie wil omschakelen.
Een van de grootste pluspunten zijn de 21 zonnepanelen, goed voor een flinke besparing op je energiefactuur. Bovendien geniet je nog zes jaar lang van groene stroomcertificaten – een financieel voordeel dat je vandaag de dag nog zelden vindt.
De tuin is zuidoostelijk georiënteerd en laat je volop genieten van de ochtend- en middagzon. Dankzij de royale perceeloppervlakte zijn uitbreidingen zoals een serre, bijgebouw of zelfs een zwembad perfect mogelijk. Het vernieuwde terras sluit naadloos aan op het gazon, waar kinderen zorgeloos kunnen spelen en je tegelijk geniet van rust en ruimte.
De woning geniet van een vlotte en centrale ligging die zowel gezinnen als pendelaars zal aanspreken. Op wandelafstand vind je alles wat je nodig hebt: een school, openbaar vervoer, gezellige horeca, winkels en medische voorzieningen. Bovendien bereik je de oprit naar de snelwegen in minder dan tien minuten, wat zorgt voor een uitstekende verbinding met de rest van de regio. Een praktische locatie waar comfort en bereikbaarheid hand in hand gaan.
De Brabantsebaan 66 is met zijn ruime oppervlakte, volwaardige kelder, zonnepanelen met certificaten en uitbreidbare zolder een woning boordevol potentieel. Interesse om dit pand met eigen ogen te ontdekken? Neem dan vandaag nog contact op via 011 255 155 voor een persoonlijke rondleiding. – Bron bewoonbaar oppervlakte: EPC-verslag.
Kenmerken
| Adres | Brabantsebaan 66 Scherpenheuvel-Zichem |
| Prijs | € 435.000 |
| Bouwjaar | 1983 |
| Renovatiejaar | 2024 |
| Perceeloppervlakte | 1.266 m² |
| Bewoonbare opp. | 210 m² |
| Beschikbaar vanaf | Bij akte |
Energie
216 Kwh/m²
F
E
D
C
B
A
A+
| EPC waarde | 216,00KWh/m²/jaar |
| EPC-certificaatnummer | 20250604-0003617275-RES-1 |
| Raamwerk | Hardhout |
| Type beglazing | Dubbel |
| Verwarming | Stookolie |
| Isolatie | Dakisolatie, Muurisolatie |
Financieel
| Prijs | € 435.000 |
| Kadastraal inkomen | € 981 |
Schatting maandelijkse afbetaling
Afbetaling
Indeling
| Type bebouwing | Woning |
| Bouwlagen | 3 |
| Op verdieping | 2 |
| Woonkamer | 20 m², Woonkamer |
| Keuken | 14 m² |
| Slaapkamers | 4 (14 m², 10.50 m², 10.50 m², 25 m²) |
| Badkamers | 1 |
| WC | 1 |
| Bureau | 1 |
| Berging | 11 m² |
| Zolder | 19 m² |
| Kelder | 79 m² |
| Terras | 30 m² |
| Wasplaats | 10 m² |
Grond
| Perceeloppervlakte | 1.266 m² |
| Gevelbreedte | 14,3 m |
| Terrein breedte | 30 m |
| Terrein diepte | 40 m |
| Tuin | 719 m² |
| Tuin oriëntatie | Zuid-Oost |
| Tuin kwaliteit | Normaal |
| Garage | 1 (1 plaats) |
| Garage Oppervlakte | 24 m² |
| Garage Types | Parkeerkelder |
| Garage uitrusting | Elektrische voorzieningen, Water voorzieningen |
| Parking | 4 |
Comfort
| Daksoort | Zadeldak |
| Dakbedekking | Dakpannen |
| Gevel | Baksteen |
| Fundering | Kelder |
| Verwarmd water | Stookolie |
| Zonnepanelen | Ja |
Stedenbouwkundige info
| Bestemming | Woongebied met landelijk karakter |
| Bouwvergunning | Ja |
| Verkavelingsvergunning | Ja |
| Voorkooprecht | Neen |
| O-peil | Geen afgebakende zones |
| P-score | A |
| G-score | A |
| Erfgoed | Geen beschermd erfgoed |
Plan een bezichtiging
met
Wiktoria
Interesse? Neem contact op en ontdek hoe wij
u verder kunnen helpen.
Neem contact op
u verder kunnen helpen.